--   |  设为首页

帮忙装修网

中山

[切换]

用几卷壁纸创造个性 43平小公寓如此出彩

来自:中山帮忙装修网 日期:2022-01-15 15:57:45 209329 次 分享到:
导读:
有时候两卷昂贵的墙纸足以让室内装饰变得更加个性化。中山帮忙装修网公司分享。

顾客为自己和她的小女儿在一幢新建筑物中购买了一套公寓。她将创作设计项目委托给伊琳娜·佩特洛娃(Irina Petrova) - 最重要的需求是要保持在有限的预算内,但同时要创造出时尚的内饰。公寓有两间卧室,一间厨房和一间浴室。

“有时候两卷昂贵的墙纸足以让室内装饰变得更加个性化,正像在这间公寓中应用” 设计师说, “我们选择了带有花卉饰品的Thibaut,Cole&Son的壁纸,其余的的墙壁刷漆,地板是复合地板。”

20180305_100657_000.jpg

▲ 玄关

客户想要在室内放松,所以他们不想要大柜子。最终他们利用一部分空间做了一间单独的更衣室,其中加上几个柜子和架子。

“最初,客户倾向于斯堪的纳维亚风格的内饰,”Irina Petrova说,“但她不喜欢很多黑色以及整体的冷调。因此,在设计当中淡化了绿色和蓝色。在我们的气候中,没有足够鲜艳的色彩和绿色植物。”

20180305_100657_001.jpg

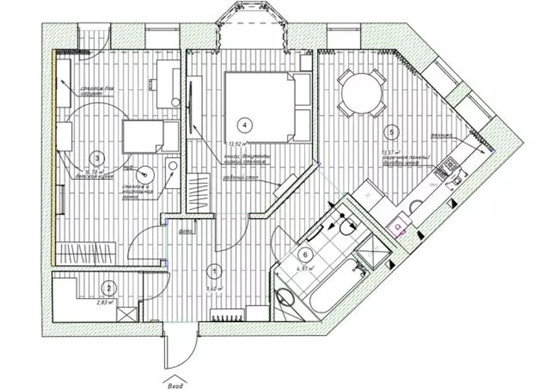
▲ 房屋平面图

20180305_100657_002.jpg

▲ 餐区角落充满绿意

20180305_100657_003.jpg

▲ 厨房、餐区,地面用斜拼铺设

20180305_100657_004.jpg

▲ 餐区

20180305_100657_005.jpg

▲ 室内灰色墙面

20180305_100657_006.jpg

▲ 走廊

20180305_100657_007.jpg

▲ 卧室,利用蓝色壁纸营造床头背景

20180305_100657_008.jpg

▲ 卧室

20180305_100657_009.jpg

▲ 卧室,飘窗

20180305_100657_010.jpg

▲ 卧室

20180305_100657_011.jpg

▲ 衣帽间

20180305_100657_012.jpg

▲ 儿童房,灰粉色的背景

20180305_100657_013.jpg

▲ 儿童房,床榻部分作出女孩儿喜欢的暖帐效果

20180305_100657_014.jpg

▲ 利用绿色田园风的壁纸

20180305_100657_015.jpg

▲ 儿童房,在墙面造出攀登台

20180305_100657_016.jpg

▲ 浴室,利用角落做洗手盆

20180305_100657_017.jpg


装修预算不够?快来申请装修贷款!月息低至2.5厘。帮忙装修网为解决业主的装修资金难题,特与银行合作推出“装修贷”,一站轻松办理:18824725983 吴先生

长按二维码关注"帮忙装修网",了解更多装修资讯↓↓↓


或拨打免费热线:13822775923

已成功招标53521